Welcome to ONGC Hazira Plant Intranet
GAS SWEETENING UNIT
CONTENTS PAGE
1.0 INTRODUCTION - 01 - 08
General
Design Basis
Design Capacity
Gas Feed Stock Specification
Product Specification
Utility Specification
Effluents
2.0 PROCESS DESCRIPTION - 09 - 26
MDEA Process Principles
Description of MDEA Train
Absorption Section
MDEA Regeneration Section
Miscellaneous
Chemical Consumption
Chemical Properties
Utility Consumption
Waste Effluents
Process Flow Diagram
Liquid Effluent Underground Layouts
3.0 PLANT START UP - 27 - 36
Initial start up
Normal start up
4.0 OPERATING PARAMETERS - 37 - 43
General
Operating Control Points
Adjusting Operating Parameters
Absorption
Regeneration
Foaming
Filtration
5.0 PLANT SHUTDOWN PROCEDURES - 44 - 55
Plant Shutdown (Short duration)
Plant Shutdown (Long duration)
Emergency Shutdown
6.0 ALARMS AND TRIP SETTINGS - 56 - 57
7.0 OPERATIONAL TIPS -
8.0 SPECIAL FEATURES AND MODIFICATIONS - 58 - 63
9.0 SCHEMATICS OF DIFFERENT MODIFICATIONS - 64 - 72
GAS SWEETENING UNIT
1. INTRODUCTION
1.1 GENERAL
1.2 DESIGN BASIS
1.2.1 DESIGN CAPACITY
1.2.2 GAS FEEDSTOCK SPECIFICATIONS
1.2.3 PRODUCT SPECIFICATIONS
1.2.4 UTILITY SPECIFICATIONS
1.2.5 EFFLUENTS
1.0 INTRODUCTION
1.1 GENERAL
This design and operating manual covers the design and operating instructions for a Gas Sweetening Plant. There are a total of 8 trains. Gas Sweetening trains 37 and 38 have the capacity to treat 6.3 MMSCMD of sour gas per train from the Slug Catcher and Condensate Fractionation Unit. However, other trains of GSU are having capacity of 5.6 MMSCMD each.
The GSU trains were built in phases. The phase-wise capacity is as under:
Nos. of trains | Capacity | |
Phase-I | Three trains | 5.6 x 3 MMSCMD |
Phase-II | Two trains | 5.6 x 2 MMSCMD |
Phase-III | One train | 5.6 x 1 MMSCMD |
Phase-III A | Two Trains | 6.3 x 2 MMSCMD |
The total capacity of GSU trains is 40.6 MMSCMD with 07 operating & one standby of 5.6 MMSCMD capacity.
1.2 DESIGN BASIS
1.2.1 DESIGN CAPACITY:
Two Gas Sweetening Trains of Ph-III A (37 & 38) can handle a total of 12.6 MMSCMD of sour gas. The remaining trains of GSU can handle 28 MMSCMD with 5 trains operating and one standby. This makes the total capacity 40.6 MMSCMD with one train of capacity 5.6 MMSCMD as standby.
The plant has been designed such that the minimum capacity for each Gas Sweetening train is 40% of the design capacity.
1.2.2 GAS FEEDSTOCK SPECIFICATIONS
The following mixed gas composition (mix of slug catcher gas and CFU off- gas) has been considered for the design of GSU and GDU. (based on design of Phase III-A)
COMPOSITION | |||
Components | Design Case | Check Case | |
(Mole %) | (Mole %) | ||
N2 | 0.21 | 0.19 | |
CO2 | 6.00 | 6.50 | |
H2S | 0.137(1375ppm) | 0.137 | |
Cl | 79.84 | 78.596 | |
C2 | 7.48 | 7.41 | |
C3 | 4.14 | 4.54 | |
iC4 | 0.18 | 0.23 | |
nC5 | 0.17 | 0.22 | |
C6 | 0.22 | 0.15 | |
C7 | 0.05 | 0.11 | |
C8 | 0.01 | 0.05 | |
C9 | 0.002 | 0.01 | |
ClO | 0.001 | - | |
The design composition (given above) of sour gas is as per the Material Balance given by SNEA (P) after the Test Runs. Additionally the design shall be checked for the check case composition containing 6.5% (mole) CO2 by adjusting methane content.
Pressure at Battery Limits : 96-54 kg/cm2 abs.
Temperature at Battery Limits : 20-33 °C
Gas Sweetening train will have a maximum operating pressure of 77 kg/cm2a. A pressure control valve and heating device upstream of the pressure valve will prevent hydrate formation. H2S and CO2 content will vary depending on conditions.
1.2.3 PRODUCT SPECIFICATIONS
The product from each Gas Sweetening train will meet the following specification.
Sweet and Dry Gas:
H2S content : 4 ppm Vol. Max.
Pressure at Battery Limits : 74.9 - 51.9 kg/cm2abs.
Temperature at Battery Limits : 40oC
Rich MDEA Flash Gas :
H2S content : 4 ppm Vol. Max.
Pressure at Battery Limits : 4.5 kg/cm2abs.
Temperature at Battery Limits : 48 – 55oC
Acid Gas:
Hydrocarbon content will be minimized.
Pressure at Battery Limits : 1.9* kg/cm2 abs.
Temperature at Battery Limits : 50oC
* Downstream of the pressure control valve.
1.2.4 UTILITY SPECIFICATION
1.2.4.1 STEAM
Min. | Nor. | Max. | Design | |
A) H.P Steam Pressure kg/cm2a Temperature °C | 35 Sat. | 37 Sat. | 40 250 | 560 |
B) M.P Steam Pressure kg/cm2a Temperature °C | 18 Sat. | 20 Sat. | 24 230 | 250 |
C) LP Steam Pressure kg/cm2a Temperature °C | 6 Sat. | 6.5 Sat. | 10 180 | 200 |
1.2.4.2 INSTRUMENT AIR
Min. | Nor. | Max. | Mech. Design | |
Pressure, kg/cm2 a | 6.5 | 7.0 | 7.5 | 10 |
Dew point, °C at 7.5 kg/cm2g | -15 | |||
Oil content, ppm | Nil |
1.2.4.3 PLANT AIR
Min. | Nor | Max | Mech.Design | |
Pressure, kg/cm2a | 6.5 | 7.0 | 7.5 | 10 |
Dew point, °C | Sat. | |||
Oil content, ppm | Nil |
1.2.4.4 COOLING WATER
Supply pressure at grade kg/cm2a 5
Return pressure at grade kg/cm2 2.5
Supply temp. °C for exchanger design 33
Maximum return temp. at any exchanger outlet,°C 44
Quality:
Turbidity, NTU
Alkalinity, ppm 15-20
Total hardness, ppm at CaCO3 300
Silica as SiO2, ppm 125
Chlorides as Cl, ppm
TDS, ppm 850
pH 6.2-6.6
Conductivity at 20°C, µmho/cm
1.2.4.5 SERVICE WATER
- Supply pressure at grade kg/cm2a 7.0
- Return pressure
at grade kg/cm2a --
- Supply Temp.°C for exchanger design Amb.
- Maximum return --
temp. at any exchanger outlet
Quality:
pH 7-8
Turbidity NTU 5
Alkalinity, ppm
Hardness as CaCO3, ppm:
Calcium 67
Magnesium , 47
Sodium as CaCO3 ppm 127
Bicarbonate as CaCO3, ppm 174
Chloride as CI, ppm 33
Sulfate as S04, ppm 33
Silica as Si04, ppm 30
Iron as Fe, ppm 0.3
Organic matter normally NIL
TDS, ppm 66
Conductivity at 25 °C
µmho/cm
Mechanical design
pressure kg/cm2a 11
Mechanical design Temperature °C 65
1.2.4.6 INERT GAS (C02/N2)
Min. | Nor. | Max. | Design | |
Pressure, kg/cm2a | 6.0 | 7.0 | - | 10.0 |
Temperature, °C | 40 | 50 | 75 | |
Purity | ||||
Oxygen content | 0.5% | |||
H2 content | 0.1% | |||
Dew point/moisture 'content | -40.C at 8 kglcm2a | |||
CO content | 0.1% | |||
N2 + CO2 content | Balance | |||
Oil content | Oil free | |||
Note : If this gas is not suitable for blanketing, fuel gas may be used.
1.2.4.7 FUEL GAS
Normal | Start-Up. * | |
Pressure, kglcm2a | 4.5 | 4.5 |
Temperature, °C | 20-45 | 20-45 |
Molecular weight | 19.0 | 20.94 |
Design pressure kg/cm2a = 11, Design Temp. o C = 65 | ||
Composition:
C1 | 89.06 | 80.14 |
C2 | 5.55 | 7.70 |
C3 | 1.33 | 4.48 |
C4 | 0.15 | 1.80 |
C5 | Nil | 0.73 |
CO2 | 3.90 | 5.14 |
N2 | 0.01 | 0.01 |
O2 | Nil | Nil |
H2O | Nil | Saturated |
Sulphur (H2S) | 2ppm | 4ppm |
Olefins | Nil | Nil |
Acetylene | Nil | Nil |
Heating value Kcal/kg,Net | 10350 | 10430 |
*This condition will also occur during LPG plant shutdown.
1.2.4.8 BOILER FEED WATER
Pressure, kg/cm2a 2.0
Temperature AMB.
Quality required for steam generation is acceptable.
1.2.4.9 METHANQL
Normal Mech Design
Pressure, kg/cm2a 3.0 7.0
Temperature, °C Amb. 65
1.2.4.10 ELECTRICAL POWER
Service Voltage Phase Freq. CPS . Hz
a. Motors up to 160KW 415 V 3 50
161KW & above 6.6 KV 3 50
b. Lighting distribution 240 V 1 50
c. Instruments 110V D.C. for interlocks.
110V A.C. – Through inverter (No break)
415V, 240V 6.6 KV 110V (DC) 110V(A.C.)
Voltage variation : + 6% +10% +10% +1%
Frequency variation: + 3% +3% --- +1%
1.2.5 EFFLUENTS
Released liquid hydrocarbons will be sent to closed blow down system.
Released gaseous hydrocarbons will be sent to a central flare system.
Back pressure of flare at battery limits end will be:
maximum service : 1.8 kg/cm2g
normal service : 0.6 kg/cm2g
- Liquid waste effluents will be sent to a central waste water treatment.
2.0 PROCESS DESCRIPTION
2.1 GENERAL
2.2 GAS SWEETENING UNIT
2.3 MDEA PROCESS PRINCIPLES
2.4 DESCRIPTION OF A MDEA TRAIN
2.5 ABSORPTION SECTION
2.6 AMINE REGENERATION SECTION
2.7 MISCELLANEOUS
2.8 CHEMICALS
2.9 UTILITY CONSUMPTION
2.10 WASTE EFFLUENTS
2. 0 PROCESS DESCRIPTION
2.1 GENERAL
In the sweetening process, gas is washed with aqueous solutions of MDEA. The MDEA and TEG trains are connected with one another by a pipe rack supplying products (raw gas, desulfurized and dried gas) and required utilities.
2.2 GAS SWEETENING UNIT
The main purpose of this gas treatment step is to remove the H2S from the sour gas with a high severity, and at same time, to limit the CO2 co-absorption to the minimum required and in any case, to not more than 32%.
2.3 MDEA PROCESS PRINCIPLES
The selective removal of H2S is made by washing the sour gas with an aqueous solution of Methyl-Di-Ethanol-Amine (MDEA).
The process principles are similar to the well known SNPA-DEA process. The only difference is the behavior of the ethanolamine used.
Methyl-diethanolamine (MDEA) is a tertiary amine, which does not react easily with CO2. The selectivity is so promoted by using the differences in reaction rates between both H2S and CO2 and the tertiary amine.
For a good understanding of the process, a brief recall of the reaction mechanisms of CO2 and H2S with ethanolamines is necessary.
First the case of a primary or secondary amine (monoethanolamine or diethanolamine) whose reactions with the acid components H2S and CO2 are similar, is investigated.
H2S reacts to give amine hydrosulfide:
H2S + R2NH HS - , R2NH2+ (I)
CO2 can react directly with amine to form an amine carbonate:
CO2 + 2R2NH R2NCOO- , R2NH2+ (2)
But CO2 can also react with water or hydroxyl ions to form carbonic acid or bicarbonate ions:
CO2 + H2O H2CO3 (3)
CO2 + HO- HCO3- (4)
These acids then react with the amine to form amine bicarbonate (HCO3,- RNH2+) and amine carbonate (CO2, (R2NH2+)2).
As regards kinetics, 3 types of reaction can be distinguished
- reaction (1) whose rate is infinite,
- reaction (2) whose rate is moderate, depending on amine
- reaction (3) and (4), known to be slow
It is known that using MEA or DEA the absorption rate of CO2 in the absorber may be lower than the absorption rate of H2S; however CO2 removal is regarded as complete.
The case of tertiary amine is different. As a matter of fact, the molecular structure of the tertiary amine prevents the direct reaction of CO2 with carbonate formation (reaction (2)).
Reaction rate difference between H2S and CO2 is thus clearly marked since there only remains reaction (1) whose rate is infinite and reaction (3) and (4) whose rates are slow.
To perform a selective de-sulfurization using a MDEA solution, it is necessary to provide in the absorber a gas-liquid contact time large enough to remove H2S but short enough to retain CO2 partially.
H2S and CO2 absorption performance control is therefore mainly controlled by the gas-liquid contact time in the absorber. Contact time depends on :
- the gas flow rate
- a liquid height above active plate area - the number of plates in absorber
The first 2 parameters cannot be acted upon. The 3rd parameter (plate quantity) allows to adjust contact time according to the feeding conditions and required performance.
2.4 DESCRIPTION OF A MDEA TRAIN
Presently, GSU inlet pressure of raw gas varies from 57 - 65 kg/cm2a. and temperature ranges from 20 °C to 33 °C.
The working pressure in the gas washing unit (inlet separator, absorption column, outlet separator) is the range of 57 - 61 kg/cm2a. Slug catcher-derived gas pressure is controlled by an automatic valve (PV-1101). At the time of this pressure reduction operation raw gas is pre-heated in a low pressure vapor-fed heater to prevent hydrate formation.
2.5 ABSORPTION SECTION
Slug-catcher-derived raw gas is first heated in steam heater (E-305). Then it is passed through the pressure regulating control valve (PV1101). Its temperature is maintained above 25°C by controlling the heater (E-305) steam flow (TV-1106).
This raw gas is then mixed with the condensate treating unit-derived raw gas, which is made up of the light hydrocarbon fraction contained in the raw condensates.
This raw gas mixture passes through a knock out drum (V -301) where liquid carry over (water, hydrocarbon) are retained to be pumped (P-306) to the condensate treating unit.
Upon leaving separator (V-301), raw gas enters an amine absorber column (C-301) where it comes into contact counter currently with the aqueous solution of MDEA.
The absorber column includes 14 valve trays. The lean MDEA solution at 45°C enters the column upper part. Different liquid feed possibility to the column allows to select the adequate number of the trays to obtain the required results taking into account feed gas quality and operating conditions. The selected feed position could be to trays 1, 3, 5, 7 or 9 and the switching over from one to another is manual. The MDEA feed nozzles are arranged such that the liquid feed is fed to the downcomers of trays (1, 3, 5, 7 and 9 and not on to the trays themselves.
The upper tray is dry and retains the major part of carryovers. The total lean MDEA solution flows to the column under flow control FV-II04.
At absorber C-301 top, treated gas contains less than 4 ppm vol. H2S. Temperature ranges from 40 °C to 44 °C. The gas is cooled to 38 °C by passing through a water cooler (E-306).
Liquid phase resulting from cooling (condensed water + vesicular amine carryover) is separated in the treated gas KO. Drum (V-302) and returned to rich amine circuit at a lower pressure.
Treated gas is piped to TEG drying unit.
2.6 AMINE REGENERATION SECTION
The stream of the rich amine solution is recovered under level control valve (LV-1112) from the bottom of the absorber and piped to the rich amine flash drum V-303. The sour flashed gas from this drum contains about 200 ppm (vol.) H2S. In order to meet the fuel gas specifications (less than 4 ppm vol. of H2S) this sour fuel-gas is brought into contact with a small lean MDEA flow in a 6 valve tray absorption tower C-303 placed on the top of the rich amine flash drum V-303.
The rich amine solution flows from the flash drum to the rich/lean amine exchanger E-301 A/B. The rich amine flash drum level control valve is located downstream of the exchanger in order to minimize the solution degassing by the exchanger plates. MDEA solution stripping is accomplished in the regenerator C-302 by the vapor generated from the reboiler E-304.
The lean amine collected at the bottom of the regenerator is routed through amine/amine exchanger and cooled to 45 °C in a lean amine cooler and sent to a large lean amine storage tank (T-301).
The hot acid-gas/steam mixture from the overhead of the regenerator is cooled to 50 °C in a condenser E-303 where water vapor condenses. This condensed vapor is separated in the reflux drum V-304 and pumped back (P-304 A/B) to the top section of the regenerator.
The trays are provided for washing the acid gas with reflux water in order to minimize amine carryover.
Acid gas is sent to an acid gas header through a pressure control valve , which maintains a 2.0 kg/cm2a minimum pressure on top of the reflux drum V-304.
From the storage tank T-301, lean amine is pumped back to the absorbers (C-301 and C-303) by the main amine charge pump P-301 A/B.
The discharged amine stream is split into two parts through flow rate control valves: a main stream flows to the high pressure Absorber C-301 and a smaller one to the fuel-gas absorber C-303.
2.7 MISCELLANEOUS
2.7.1 STORAGE TANK
The total amine circulating stream is drawn-off toward a large storage tank T-301.This tank has several functions:
Its capacity allows the recovery of the total amount of amine in circulation when the train is drained for maintenance operations.
In normal operations, it has a regulating effect on the disturbances caused by the level control valve actions on the rich amine and the lean amine circuits
It simplifies the pure solvent make-up and control of the MDEA concentration in the lean solution
It effects an efficient decantation of the amine solution before filtration.
MDEA is very sensitive to oxygen whose contact produces acidic elements. In order to avoid direct contact with air, the storage tank is equipped with a gas blanket. Inert gas is normally used as blanketing gas. However the inert gas at HAZIRA plant contains residual amounts of oxygen (0.5%) making it unsuitable for this purpose.
Even though the quality of the fuel gas available from the fuel gas header is rather unattractive due to the presence of large amounts of CO2, which may cause undesirable effects on the lean amine quality, this fuel gas was finally preferred.
SNEA(P) confirmed that the expected lean amine degradation due to the CO2 reaction with MDEA was very small considering the mass-transfer conditions at the gas liquid interface in the storage tank.
2.7.2 FILTRATION PACKAGE
This filtration package is designed to treat approximately 10% of the total lean amine flow. It consists of three filters:
A pre-coat filter X-301
An activated charcoal bed V -3 11
A cartridge filter X-302
A side stream, approximately equal to 10% of the total lean amine flow is drawn off the storage tank by the Lean Amine Filter Pump P-303 NB. It passes under flow control through the Pre-Coat Filter X-301. The pre-coat filter is designed to remove solid particles such as iron sulphides, and iron carbonates from the lean amine.
Downstream of the pre-coat filter the stream splits. The main stream returns to the amine storage tank. A side stream, approximately equal to 1 % of the total lean amine flow, is taken off and passes under flow control to the Activated Charcoal Filter V-311. In the activated charcoal filter any further degradation products and hydrocarbons are removed. This stream then passes through a Cartridge Filter X-302 where any entrained activated charcoal is removed. It joins the outlet of the pre-coat filter and returns to the amine storage tank. All amine solution collected in the Sump Drum V-307 (see the following section) is pumped to the suction of the lean amine filter pumps P-303 A/B.
2.7.3 SUMP DRUM
The MDEA section is provided with a sump drum (V -307) to collect the drips and drains from the unit. All low point drains from columns, vessels, pumps etc. are piped into V-307 where the MDEA is collected. If part or all of the MDEA unit are shutdown, then the amine solution is first drained to the sump drum, pumped to the amine filter pumps and passes through the filtration package before going to the storage tank T-301. The sump drum is fitted with a pump P-305 that starts automatically when a high level is reached and stops automatically on low level. The sump tank is also blanketed with fuel gas to prevent solution by degradation of the MDEA due to ingress of oxygen.
2.7.4 ANTIFOAM PACKAGE
An antifoam package is provided for the injection of antifoam chemicals into the MDEA circulation system, at the suction of the amine charge pump P-301 A/B. This antifoam package is common to all sweetening trains.
Based on the LACQ Plant experience, the antifoam chemical is mixed with stabilized hydrocarbon condensate in a storage drum 30-V-391. Sufficient amounts of aromatic hydrocarbons are necessary in this condensates for a good dispersion of the antifoam product.
A circulation pump 30-P-391 A/B ensures a sufficient liquid velocity in the distribution line to prevent solid deposits. A normal injection flow rate, adjusted by manual valve and controlled by a rotameter and a rapid injection flow rate through a control valve operated from the control room panel are provided in each sweetening train.
2.7.5 FLARE SYSTEM
A common flare header, Flare KO Drum (30-V-392) and flare blow down pumps (30-P-382 A/B) are provided within B/L for trains of both, sweetening & dehydration units. All the hydrocarbon vapors/liquids collected from vents and pressure relief valves will go to the flare KO Drum (30-V-392) through the flare header. From there the gas goes to the flare stack through an off-sites flare header. The liquid collected from Flare KO. Drum (30- V -392) will be pumped through to slop tank located in off-sites.
2.7.6 METHANOL SYSTEM
Methanol is used to prevent/melt away hydrate during upset conditions in the sweetening unit. Methanol Pot (30-V-394) and methanol injection pumps (30-P-393 A/B) are provided for the sweetening unit. Discharge line goes to the pipe rack and from there it is distributed to the unit.
2.7.7 FUEL GAS SYSTEM
A fuel gas K O. Drum (30-V-393) has been provided to separate entrained MDEA from the flashed gas in LP fuel gas. The fuel gas from the drum joins the fuel gas header and the MDEA is sent to the DA system of Gas Sweetening Unit on Level control of 30-V-393.
Fuel gas for blanketing of MDEA tank is supplied from the dew point depressed gas after pressure let down from HP-to-LP fuel gas through a backpressure control valve (30-PCV-1553). Fuel gas for lean glycol stripping is taken directly from the dehydrated gas line within Dehydration unit.
Presently fuel gas generated from MP flash drum (V-303 ) and degasser (V-402) of GSU Ph I and II trains is routed through V-305 and V-306 (Vapor Compressor suction KODs) to avoid possibility of any liquid carry over. (Ref. “Special Features and Modifications” of the manual)
2.7.8 TURNDOWN RATIO
Equipment used in gas sweetening and dehydration units is as generally found in petroleum and petrochemical plants. For example, trayed columns, gas-liquid separators, pumps, compressors, heat exchangers and the like.
Generally, equipment performance decreases as the load reduces; but this decrease will not be less than a minimum limit imposed by the design. For example:
Valve trays 25% of feed gas
- Lean amine pump (centrifugal-heavy duty) 35% of feed liquid
Overall turn down ratio to 40% of the design capacity can be obtained without any special additions to the standard features of the equipment.
With this turn down ratio of 40%, design sweetening and drying performances will be maintained, with an increase in the specific energy consumption.
2.8 CHEMICAL
2.8.1 CHEMICAL CONSUMPTION
The expected chemical consumption is given for the gas sweetening units at design capacity (6.3 MMSM3/day of sour gas from slug catcher) and for 365 days/year.
Pure solvents
MDEA (methyldiethanolamine) 125 Tons/year x 2
TEG (Triethylene glycol) 27.5 Tons/year x 2
Antifoam
Typical consumption assuming the use of recommended product RM 411.
Pure product (RP-411) 875 kg/year x 2
Filter aids
Typical consumption is given assuming the use of cellulose as filter aid and a normal frequency of filter wash (twice/week)
Pure cellulose : 1.5 tons/year x 2
Charcoal
Recommended quality : Type AC 40 (manufactured by CECA, France)
Typical consumption : 1.5 tons/year x 2
2.8.2 FIRST LOADS
CHEMICAL | 2 TRAINS OF GAS SWEETENING + 2 TRAINS OF GAS DEHYDRATION |
M.D.E.A. (PURE) | 220.0 TONS |
T.E.G. | 80.0 TONS |
CHARCOAL | 1.0 TONS |
ANTIFOAM | 0.32 TONS |
2.8.3 CHEMICAL PROPERTIES
These physical properties correspond to typical commercial products:
a) MDEA
b) Antifoam RP 411
c) Charcoal ACTI CARBON 40 d) Filter aid
a) MDEA (Methyl-di-ethanol-amine)
Chemical formula
CH2-CH2-OH
CH3-N
CH2-CH2-OH
Commercial product characteristics
- Molecular weight 119.16
- Purity 98.5% weight
- Color (pt. Co., Hazen) 100
- Density (20 °C, NFT 60-101) 1039-1042 kg/m3
- Distillation 760 mmHg (ASTM D. 1078)
Initial point 235 oC
End point 255 oC
- Water content (Fisher) 0.5% weight
- Freezing point, °C -21
- Flash point , °C 126.7
- Refractive index 1.4678
Packing and delivery
Bulk or barrels.
b) Antifoam RP 411
Product manufactured by PHONE POULENC (France). This commercial product called RHODORSIL ANTIFOAM 411 is a compound of dimethylpolysiloxanic oil.
- Appearance Cloudy liquid
- Color Pale grey
- Purity (active material content) 100%
- Solvents Aliphatic aromatic or Chlorinated hydrocarbons - Density (20°C) 1000 kg/m3
- Viscosity (20°C) 100 cp
- Effective concentration 1 to 100 ppm of pure product
-Use in aqueous materials solvent 10% weight diluted in solvent
- Packing and delivery 5 or 25 kg drums
c) Charcoal AC 40
ACTI CARBON 40 is manufactured by CECA (France)
Chemical nature: charcoal
Characteristics
- Pellet diameter 1.8 mm
- Bulk density 450 kg/m3
- Specific heat 0.25 kcal/kg oC
- Pore volume 0.85 cm3/g
- Specific area 1150 m2/g
- Ash content 10% max.
Use
In a fixed bed for continuous filtration of lean amine solution (45°C)
Packing and delivery
25 kg plastic bags
d) Filter aid
Type
Cellulose manufactured by EURO FILTER (France)
Characteristics
Packed fibers containing 100% cellulose
Use
In a pre-coat filter for continuous filtration of lean amine solution (45 oC)
Packing and delivery
50 kg balls
2.9 UTILITY CONSUMPTION
PLANT | : OIL AND NATURAL GAS CORP. LTD., HAZIRA | ||||||||||||||||||
UTILITY SUMMARY | |||||||||||||||||||
UNIT | : GAS SWEETENING UNIT (CASE: 54kg/cm2a, 33 "'C) | ||||||||||||||||||
JTI:M NO. | SERVICE | ELEC. | STEAM(KG/CM2A) | WATER | RJEL | AIR | |||||||||||||
POWER | HP(33 KG) I MP(16KG) I LP(KG) I COND I LOSS | C.W I | D.W I SOFT I B.F.W | GAS | OIL | N2 | LA I P.A | ||||||||||||
KW | KG/HR | M'/HR | NM'/HR | KG/HR | NM'/HR | NM'/HR | |||||||||||||
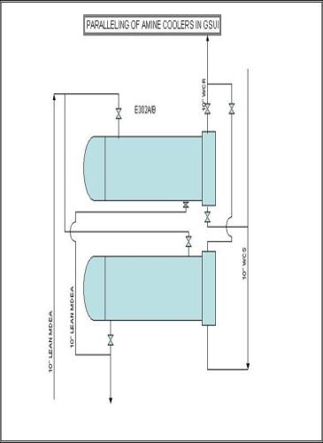
37-E-302 | EAN AMINE COOLER | 37 | |||||||||||||||||
37-E-303 | VERHEAD CONDENSER | 702 | |||||||||||||||||
37-E-304 | GENERATION REBOILER | 27.0 | -27.0 | ||||||||||||||||
37-E-30 | OUR GAS HEATER | 10 | -10 | ||||||||||||||||
37-E-306 | WEET GAS COOLER | 47 | |||||||||||||||||
37-T-301 | LEAN AMINE STORAGE TANK | 0,6 | 224 | ||||||||||||||||
37-T-302 | PRECOAT STORAGE DRUM | 40 | |||||||||||||||||
37-1'-301 | AN AMINE CHARGE PUMP | 836 | 3.2 | ||||||||||||||||
37-1'-303 | AMINE FILTER PUMP | 8.0 | |||||||||||||||||
37-1'-304 | FLUX PUMP | 4.0 | |||||||||||||||||
37-1'-306 | C CONDENSATE PUMP | 6.4 | |||||||||||||||||
37-C-303 | ABSORBER MP | -24 | |||||||||||||||||
FLARE HEADER | O | ||||||||||||||||||
INSTRUMENTS | 200 | ||||||||||||||||||
HOSE STATION | 170. | 170. | |||||||||||||||||
- | |||||||||||||||||||
TOTAL | 84.4 | 37 | -37 | 137.2 | 0.6 | 40 | 20 | 200 | |||||||||||
NOTE: THE VALUES WITH REPRESENT INTERMITTENT AND NOT INCLUDED IN TOTAL FIGURES. | |||||||||||||||||||
2.10 WASTE EFFLUENTS
Effluents discharged from the gas sweetening units consist of filter wash waters coming from the amine pre-coat filter.
These waters contain the cellulose and the retained impurities (mainly iron sulfide).
Typical effluent composition is as follows:
- Water 99.6 % weight
- Cellulose 2500 ppm
- Iron oxide 1500 ppm
- Traces of methyldiethanolamine
Liquid effluent flows down from filter into a pit to be pumped by a submerged pump to the waste water treatment plant.
Effluent quantity to be treated,
It depends on filter cleaning frequency.
With a standard frequency of twice per week there is an average continuous effluent flow for the 2 gas sweetening trains, each operating at its nominal capacity.
3.0 PLANT START-UP
3.1 INITIAL START-UP
3.2 NORMAL START-UP
3.1 INITIAL START-UP
3.1.1 GENERAL
This instruction outlines the procedure for the initial start-up of the MDEA gas sweetening unit. It has been assumed that all preparations outlined previously in Section 3 have been completed at this time. The procedures described in this manual should be taken only as an operating guide. It is the prime responsibility of those in charge of the plant to interpret the instructions where necessary to ensure that all operations are carried out satisfactorily.
It is assumed that all pre-commissioning work outlined in Section 3 has been completed i.e. MDEA system has been cleaned, purged free of oxygen, blanketed with inert gas or start-up fuel gas and that a preliminary leak test has been carried out. Gas dehydration unit also has been ready for start-up.
All utilities (i.e. steam, cooling water, electrical power etc.) to be available on a continuous basis. Line-up the unit to be started. Check the all vents and drains are closed. Check again that all temporary blinds installed for hydro-testing or pre-commissioning have been removed. Check purging of dead end of flare system. Check that all spectacle blinds at battery limits, especially in flare lines, are in the open position. All MOV's and SOV's to be closed. All control valves to be on manual in closed position.
If all systems are purged with steam, all the steam condensate to be drained during inertizing or initial phase of start-up.
Refer to the schematic diagram for plant purging and start-up attached in Section 3.
3.1.2 PLANT START-UP SEQUENCE
The following procedures outline a suggested start-up sequence for commissioning the gas sweetening units. Other routines may be followed satisfactorily and the procedures described in this manual should be used as operating guides.
The unit flare header is to be in charged mode and all lines to flare to be in line. All PSV's should be in line.
1) Fill the amine storage tank T-301 to approximately 30% with demineralised water. Put the fuel gas blanketing system into service.
2) Using the start-up fuel gas slowly pressurize the HP absorber system (from E-305 to E-307) to 15-20 kg/cm2g, and pressurize MP absorber system (V-303 & C-303) to 8.7 kg/cm2g.
3) Start one of the lean amine charge pumps P-301 A or B and start a flow of demineralized water to absorber HP C-301 and to MP absorber C-303. Establish a normal operating level of approx. 50% of high and low level alarms in the base of C-301, and then stop the lean amine charge pump P-301 A or B and isolate it.
4) LV-1112 is to be closed thereby isolating HP absorber system with the flash drum system. This is to be done mainly for the hold up HP test.
5) Open the 2" block valve on 2"-NG-144-D6A and slowly pressurize the H.P. absorber system to 25 kg/cm2a (E-305, V-301, C-301, E-306, V 302, E-307). At 25 kg/cm2a pressure close the block valve of the fuel gas and leak test the entire system.
6) If the system is tight (i.e. pressure drop is less than 0.2 kg/cm2 per hour), re-open the 2" block valve on the start-up fuel gas and slowly raise the system pressure to 50 kg/cm2a. Again close off at B.L. and leak test the entire system.
7) If the system is tight, repeat the pressurization procedure but raise the system pressure to 75 kg/cm2a. Again the entire system must be leak tested.
8) Simultaneously with the above, the M.P. Absorber C-303 and the Flash Drum V -303 should be pressurized with start-up fuel gas to the operating pressure of 9.7 kg/cm2a and leak tested.
Notes:
It may be expedient during leak testing to split the system into smaller sections in order to find and rectify leaks more easily.
If it is necessary to depressurize the system during leak testing then gas should be vented to flare via PV-1220. Commission a small flow of steam to E-307 to heat up the vented gas and prevent hydrate formation. PV-1220 must also be tightness tested.
It is not normally necessary to re-test the regeneration system except when major engineering work or an extended time period has elapsed between the initial gas leak test (done after plant purging) and the actual start-up. The HP fuel gas should be used for leak testing because of any leakage of IDS in raw natural gas will be dangerous.
9) When leak testing of the absorber systems is complete the MDEA system should be circulated with demineralized water at or near normal operating pressures to check for leaks and function test instrumentation.
10) Prior to MDEA introduction to T-301. Fill T-301 up to approximately 30% level with demineralized water. Start one of the charge pumps P-301 A/B and establish a flow of water to the top tray of C-301 (ROV-1101open).
Slowly increase the flow using FV-1104 to approximately 40% of normal amine flow. It should then be possible to put FV-1104 on automatic control.
11) As the level starts to rise in the base of C-301 open SDV-1104 and then slowly open LV-1112 on manual to send water to the rich amine flash drum V-303. As the flow of water to C-301 increases to 40% design it should be possible to put LV-1112 on automatic control to maintain a 50% level in C-301 base.
12) Similarly when the level begins to rise in V-303 open LV-1215 on manual and begin feeding water via E-301 to the regenerator. Again as the flow rates increase LV-1215 can be put on automatic control to maintain the level in V-303 at 50%.
13) When LV-1215 functions automatically slowly open FV-1205 manually. Increase the flow and then put FV-1205 on automatic control.
14) As water is circulated, gas will be absorbed in C-301 and partially flashed in V-303. Initially all this flashed gas should be sent to flare. Keep PV-1216 closed in manual mode. Put PV-1218 on automatic with the set point 0.5 kg/cm2 higher than the existing vessel pressure. As the pressure in V-303 rises, check that PV-1218 opens to vent the gas. When the valve functions correctly, put the valve on automatic control and raise the set point to 9.7 kg/cm2a (normal operating pressure).
15) As the pressure in Absorber C-301 falls HP fuel gas should be added on a batch basis. During this topping up of C-301 pressure the action of PV-1220 should be checked. e.g. ; allow the pressure in C-301 to fail to approximately 60 kg/cm2a, put PV-1220 in automatic control with a set point of 65 kg/cm2a. Increase the pressure in C-301 using the by-pass of SDV-1101. As the pressure in C-301 rises PV-1220 should open to vent gas to flare. When the valve functions correctly put PV-1220 on automatic control at 63.0-75.5 kg/cm2a (normal pressure). However at this stage, gas should be added on a batch basis via 2" block valve on start-up fuel gas line.
16) When a level of water appears in C-302 base and low level alarm LAL-1329 has cleared, reset and open SDV-1309. Manually open LV-1327 to route water via E-301 NB, E-302 NB back to the storage tank T-301, when sufficient water is being fed into C-302 put LV-1327 on automatic control to maintain the level in C-302 base at 50%.
17) When demineralized water is fed into C-302 the pressure will begin to rise due to flashing of the entrained gases. Initially these flashed gases should be vented to flare. Therefore keep PV-1327 closed in manual mode and route the vent gases to flare via PV-1326. As the pressure rises in C-302 and V-304 function check PV-1326 and when the valve operates correctly put it on automatic control with a set point of 2.0 kg/cm2a (normal operating pressure)
to control the pressure in C-302.
18) When demineralized water is circulating satisfactorily, heating of the regenerator can begin and MDEA can be introduced to T-301. At this stage cooling water should be in service to E-302 NB, E-303 and E-306.
19) Slowly open FV-1309 and begin warming up the reboiler E-304 and thereby the circulating demineralized water. As the LP. steam condenses in E-304 a level will appear in the condensate drum V-309. Commission LV-1337 and route this condensate to the condensate header.
20) Heat up the circulating water at approximately 30 oC/hr. As the temperatures rise, commission TV-1558 to maintain a temperature of 45oC in the storage tank T-301.
21) As the top of the regenerator warms up, vapor will be carried over and condensed in E-303. This condensate will collect in the bottom of V-304. As the level rises start one of the reflux pumps P-304 A/B and return water to the tower via LV-1330. Initially it may only be possible to reflux water to C-302 on a batch basis. Later LV-1330 should be put on automatic level control. After completion of this flushing period stop the reflux pump and MDEA charge pump, then drain the system and close the drain valves.
Before introduction of MDEA in the tank, it should be confirmed that PCV1553 is online to keep T-301 under an automatic inert gas blanket.
22) Prepare the design wt% MDEA solution in the storage tank T-301 or in the MDEA solution sump. MDEA is transferred from off-site. Add the concentrated amines initially. Use the MDEA charge pump to circulate and mix the solution in the MDEA storage tank or use the MDEA sump pump for mixing and circulating the solution. Increase the circulation rate to 50% design and continue circulating for a minimum of 1 hour before sampling for concentration to ensure good mixing. Thereafter add pure MDEA or demineralized water to T-301 as required to give a solution of 45.5% wt. MDEA.
23) Fill the HP absorber and rich amine flash drum and regenerator as described above with the newly made MDEA solution from the MDEA storage tank. Circulate the solution through the system and analyze again for the MDEA concentration.
Obtain a sample at the lean amine charge pump drain valve. Add such additional amine or water as necessary to reach the design wt% MDEA solution.
24) Prior to commissioning the sweetening and dehydration circulation, the amine filter package X-301 should be first commissioned in accordance with the vendor's instructions. When the package has gone through its complete cycle and a level established in the sump V-307, commission the amine sump pump as necessary. Establish circulation to the amine tank through the filters X-30I, V-311, X-302 using the amine filter pump P-303 A or B.
25) The system is now ready for the introduction of raw natural gas feed. Start a small flow of LP steam to E-305 using TV-1106 on manual. When a level of condensate appears in the condensate drum V-308 commission LV-1101 and route condensate to the condensate header.
26) Close PV-1101 and FV-1101 on manual. Open MOV-1101 and slowly open the 2" by-pass around SDV-1101 to equalize the line pressure. When the pressures are equal, reset and open SDV-1101 and close the by pass.
27) Open FV-1101 10% on manual then slowly open PV-1101 on manual. Downstream pressure should begin to rise and a flow be detected on FRC-1101. Check that PV-1220 opens to maintain the system pressure then slowly open both PV-1101 and FV-1101 further.
28) At this stage a small flow of steam should be sent through E-307. As the condensate level rises in the condensate drum V-310 commission LV-1223 to route condensate to the header.
29) As impurities are absorbed by the amine solution in C-301 more gas will be flashed in V-303 therefore check that pressure controller PV-1218 is functioning correctly.
30) Similarly check that PV-1326 is controlling C-302 pressure. Also at this stage the temperature of the amine solution in the base of C-302 should be at its design of 128 oC. Steam flow to the reboiler E-304 should now be controlled by TRC-1334 to maintain 110 oC on C-302 overheads. One of the reflux pumps should now be in continuous operation on sending water back to the top of C-302 under automatic level control of LV-1330.
31) Continue to slowly open PV -1101 and FV -1101. Increase the feed to approximately 30% of design. At this stage it should be possible to put these valves on automatic control. Similarly the feed gas temperature controller TV-1106 should also be on automatic control to maintain the feed gas temperature at 45 oC. Also ensure that there is sufficient steam flow to E-307 to maintain the flared gas temperature at 45 oC .
32) When feed gas is introduced, condensate will be knocked out in V-301 and V-302. As the level-rises in V-301(never observed in the current life of the plant) open the HC condensate battery limit valve SDV-1103, start one of the HC condensate pumps P-306 A/B to export the condensate. The level controller LIC-1103 adjusts the pump capacity and therefore the level in V-301. As soon as possible put this system into automatic control. Similarly when the level rises in V-302 commission level controller LV-1218 to route condensate back to the rich amine flash drum V-303.
33) Sour condensate gas from the condensate fractionation section can now be fed into the unit. With flow controller FV-1102 closed in manual, slowly open the by-pass valve around SDV-1102 to equalize the pressure. When the pressures are equal, reset and open SDV-1102 and close the by-pass valve. Slowly open FV1102 on manual to begin feeding sour condensate gas the unit. As the flow on FRC-1102 increases then the set point of FRC-1101 must be raised to compensate for the flow increase. Slowly increase the flow on FRC-1102 to 30% of design capacity at which point it should be possible to put the valve on automatic control.
34) The unit should now be stabilized with the following conditions: - Sour natural gas feed 30% design (1.5 million Nm3/hr)
- Sour condensate gas 30% design (0.105 million Nm3/hr)
- MDEA flow to C-301 50% design
- MDEA flow to C-303 50% design
The overhead gases from C-301 and C-303 can now be sampled for purity. When the gases are on specification they can be routed to their normal product streams (Treated gas and fuel gas). Acid gas from V-304 can be routed to the acid gas unit if it is ready for operation.
35) Plant capacity can now be increased. Slowly raise the natural gas and sour condensate gas flows to 50% design. Thereafter increase MDEA circulation rates followed by feed gas rates, in incremental steps of 5% of design.
36) When possible put all controllers on automatic. Stabilize all levels and pressures and check for satisfactory operation of the section looking for leaks, vibrations, abnormal noises, etc.
3.2 NORMAL START-UP
3.2.1 GENERAL
During the course of operation of the plant, it will be necessary to start up all or portions of the plant after shutting down for various reasons. After each maintenance turn-around, the plant will have to be brought up from a depressurized, ambient temperature state. Portions of the plant will have to be restarted after a shutdown due to a mechanical malfunction or an operating problem. None of these reasons will dictate as time-consuming an operation as the initial start-up sequence presented in Section 4.1. A marginal amount of start-up experience should enable the operators to carry out a number of the previously described individual start-up steps simultaneously.
The following normal start-up sequence is recommended, with the understanding that the judgment of the operators should dictate which of these steps are required, and in what order based on the nature of the preceding shutdown. The initial start-up instructions previously described should be referred to for specific details.
3.2.2 RESPONSIBlLITIES
a) After any emergency or other shutdown, the foreman and the supervising operator in charge, prior to initiating start-up orders, shall personally check the unit to ensure that the unit is ready and safe to operate.
b) The supervisor shall be responsible for ensuring that adequate experienced operator and craft coverage is provided for the start-up.
c) The supervising operator in charge shall be responsible for ensuring that:
1. The operations outlined in this instruction are performed properly.
2. The safety regulation are observed at all times.
3.2.3 START-UP PROCEDURE
a) In this procedure it has been assumed that the plant has been shutdown for a short duration to allow maintenance on an equipment item or because of an interruption to the feed supply. The unit at this stage is assumed to have been fully pre-commissioned if necessary in accordance with pre-commissioning instructions, has been purged of air, and re-pressurized to normal operating conditions.
It is assumed that all the utility systems have been fully commissioned and are available to the unit. That all instruments have been checked and are ready to function in the automatic mode.
All piping and equipment in the unit should be lined up, and internal block valves and isolation valves should be opened as necessary.
b) Prior to commissioning the units circulation, the amine filter package X-301 should be first commissioned in accordance with the vendor's instructions. When the package has gone through its complete cycle and a level is established in the sump, commission the amine sump pump as necessary. Establish circulation to the amine tank through the filters X-301, V-311, X-302 using the amine filter pump P-303.
c) A flow of amine should now be established from the tank through the absorber, the rich amine flash drum to the regenerator using the lean amine charge pump.
d) The amine regenerator system should also be commissioned with operating temperatures brought to the normal values.
e) The HP absorber should be commissioned at this point, and a flow of sour gas feed to the unit established by initially opening the 2" by-pass around SDV-1101, and slowly pressing the plant up.
f) The amine flows should now be established at design rates to the absorber C-301.
g) Check at this time that all levels and control valves are in stable operation before establishing a flow of feed gas through the unit.
h) Slowly establish a flow of gas at 30% of design rates and flare the outlet gas steam using PV-1220.
i) Check that the pressure controls on the rich amine flash drum PIC-1218 and the amine regenerator PIC-1326 and 1327 are operating satisfactorily, and ensure that there is an adequate gas flow to the flare to completely bum the acid gas produced.
j) The sweetened gas quality and the hydrogen sulphide content of the outlet gas stream from the absorber should now be checked. Increase the flow rate of steam to the regenerator reboiler as necessary to bring the outlet gas to specification, and then commission the regenerator overhead temperature control TRC-1334 at 110 oC.
k) The flash gas from the rich amine flash drum V-303 should now be routed to the LP fuel gas system, and condensate raw gas from the condensate fractionation unit can be admitted.
I) A flow of acid gas to the Sulphur recovery unit may be now established by opening PV-1327.
m) When the outlet gas is on specification, the throughput of the unit should be slowly increased up to design levels dependent upon the availability of feed gas.
___________________________________________________________________________
4.0 OPERATING PARAMETERS
4.1 GENERAL
4.2 OPERATING CONTROL POINTS
4.3 ADJUSTING OPERATING PARAMETERS
4.4 ABSORPTION
4.5 REGENERATION
4.6 FOAMING
4.7 FILTRATION
Gas Sweetening Unit-Operating Parameters
4.1 GENERAL
Any changes in the operation of the field treating units will directly affect the operation of the plant.
Likewise, changes in the different units within the plant will mutually affect the other units and ultimately require off-setting adjustments. Other changes which affect the plant and require adjustments are the effects of seasonal changes, ambient temperatures, the changes caused by the intensity of the sun's rays and the effect of rain or wind. These cause temperatures to vary, resulting in changes in stream densities and viscosities. Tower operation often displays cyclical effects due to day-v/s-night temperature changes. All of these require adjustments in operation in order to produce products of a constant specification.
However, excessively frequent operational adjustments or extremely large corrections are undesirable as they will cause upsets which, in turn, will not allow operations to stabilize. Change pressures and temperatures carefully and deliberately to avoid equipment damage and operational upsets. Make small changes incrementally to avoid over controlling or oscillating around control point. Always employ elaborate precautions to avoid air-hydrocarbon mixtures in explosive ranges. Confirm that the flare systems are in continuous operation to protect the plant by providing a rapid means of disposal of flammable materials at all times.
Assign routine maintenance and lubrication schedules to all driven equipment as soon as they begin operation. Regular inspections, lubricating schedules and preventive maintenance are proven procedures for achieving peak operating efficiency and long trouble-free runs. Inspect all units at frequent intervals and check the levels in all vessels, which have liquid levels. Watch the operation of level controllers particularly during periods when changing temperatures, foaming or other conditions exist that could upset the unit.
Normally, temperatures are the most dependable data in the plant. However, thermocouple calibrations are subject to drift; therefore, before making drastic changes based on what may be incorrectly reported temperatures, check the local mounted temperature indicators. If required the thermocouples and other temperature instrumentation can be recalibrated.
The same reasoning applies to samples and their analysis. If a sample analysis appears to vary widely from the previous results while all other data remain reasonably constant, obtain a new sample before changing the operation.
Always secure good, representative samples using proper procedures and safe practices. Good results depend on good samples. Regularly inspect operating exchangers and equipment for deviations from normal, the condition of safety valves, and pressure, level or flow regulating equipment. Pressure and temperature variations are reflected in product compositions and affect product specifications.
Gas Sweetening Unit-Operating Parameters
Maintain a complete log and establish a regular sampling schedule. A smooth operation of the plant requires that all units within the plant be under control at all times. Alert understanding of all operations and the effect and relationship of one unit to the other is necessary to accomplish this. A careful surveillance of all control points, temperatures and pressures along with regular inspection of all sections of the several units are essential to successful operation of the plant.
To prevent the build up of any condensate in the piping system upstream of E-307 it is necessary on a weekly basis to operate PV-1220 for approx. 30 seconds. This weekly operation is to ensure that the system remains completely dry.
To perform this operation it will be necessary to put into service the steam system of E-307 for approximately two (2) hours. This will ensure that any condensate build up will vaporize.
When E-307 is completely warmed, open PV-1220 10% and leave in this position for about 30 seconds. After 30 seconds close PV-1220 and shut down the steam system to E-307.
4.2 OPERATING CONTROL POINTS
In normal operation, the following parameters should be regularly inspected:
a) Parameters subject to rapid changes
- H2S content in sweetened gas
- MDEA rates to absorber in case of variation of the feed gas rate(by H2S content in rich amine)
- H2S content in regenerated amine
- Temperature difference between the inlet gas and the lean amine solution
- Pressure drop in absorbers and regenerators
- Level in the MDEA tank
b) Parameters subject to slow change
- Concentration and impurities content of the amine solution
- Filtration rate, pressure drop through filters
Gas Sweetening Unit-Operating Parameters
4.3 ADJUSTING OPERATING PARAMETERS
4.3.1 GENERAL
The operating parameters in general have to be set near to the calculated conditions. However, to assure good performance of the sweetening units, the following points have to be under careful observation and control:
4.3.2 LEAN SOLUTION QUALITY
a) Concentration
The concentration of MDEA solution has to be kept around 480 g/I. Concentration above this does not adversely affect either the absorption performance or the corrosion resistance of the materials of construction. However, it could reduce the quantity of heat exchanged in the plate exchangers, which in turn will cause an increase in reboiler duty.
A significant decrease in concentration will reduce the flow rate of MDEA, and could reduce the de-sulfurization performances.
b) Acid content
Beside the concentration control, the acid gas content of the lean amine has to be carefully controlled at 0.29 g/l H2S and 0.25 g/l CO2.
c) Flow rate
The degree of de-sulfurization is directly proportional to the lean solution flow rate. Larger flow will result in a better de-sulfurization, up to the hydraulic limits of the equipment.
d) Temperature
The cooler the amine solution, the better the de-sulfurization.
Gas Sweetening Unit-Operating Parameters
4.4 ABSORPTION
a) Hydraulic control
The hydraulic function of the absorber is monitored by the pressure drop indication across the absorber. A stable pressure drop is an indication of a good hydraulic performance of the absorber.
In case of significant fluctuation of the pressure drop, the anti-foam injection must be started and the level of the liquid in the bottom of absorber has to be reduced.
b) Insufficient H2S absorption
1. An insufficient number of trays: in this case we have to put more trays in service by admitting lean amine at a higher feed point.
2. A lean solution which has not been sufficiently regenerated: this can be proved by analyzing the lean solution; and if the H2S content of the solution is more than 0.29 g/I, the operation of regenerator has to be readjusted to increase the flow of stripping vapor.
3. A weak MDEA concentration: The amine flow control valve assures a constant flow rate of lean amine solution to the absorber. In case of decrease of MDEA concentration, the number of MDEA molecules, which have to be in contact with H2S in the absorber, will be lowered. This decrease in the number of MDEA molecules will result in insufficient H2S absorption.
To readjust the correct concentration, do as follows:
Stop water make-up to T-301 and check the concentration every 4 hours. Once this has been done, add pure MDEA in the tank while controlling the liquid level. To reduce the water content of the system, it is possible to increase the temperature of the acid gas at the outlet of overhead condenser E-303.
c) High CO2 absorption
This can happen when there is a major decrease in the feed gas flow rate. To rectify this, situation, the number of trays has to be decreased and amine solution quality (H2S and MDEA concentration) has to be checked.
If possible, the situation can be improved by reducing the feed gas and feed liquid temperature to the absorber, keeping in mind that amine temperature has to be a few degrees more than that of gas to prevent hydrocarbon condensation and foaming.
4.5 REGENERATION
MDEA
The degree of regeneration from a process standpoint can be controlled only by reboiler E-304.
If the H2S content of the lean amine is greater than 0.29 g/I, the regeneration degree is not sufficient and so the top temperature of the regenerator has to be increased.
In the reboiler, we have to prevent the overheating of amine solution. This is to minimize amine degradation and also for limiting corrosion. In normal operation, the amine temperature has to be kept below 130 oC.
4.6 FOAMING
Foaming in MDEA solutions can seriously upset the vessels containing MDEA levels. The foaming can readily be detected by a change in level and a change in the differential pressure across the columns.
Foaming in MDEA solutions can generally be attributed to (1) suspended solids and corrosion products. (2) Liquid hydrocarbons, (3) organic acids that are naturally occurring in the inlet gas, (4) surface active agents contained in compressor oils, pump and valve lubricants, etc.
Foaming will reduce treating capacity and cause loss of MDEA solution. When foaming occurs in the absorber, inject anti-foam as an immediate remedy at the suction of the amine pump. Simultaneously lower the feed gas flow rate to achieve a correct DP over the absorber column: meanwhile look for the causes of foaming and eliminate them. The antifoam injection rate and frequency will be determined during actual operation by the frequency and extent of foaming.
When foaming comes under control and when the rich amine flow rate from the bottom of the absorber is stable, restore the normal feed gas flow.
Inject as much anti-foam as necessary to control the foaming but do not inject more than necessary.
One of the more frequent causes of foaming is the absorption of liquid hydrocarbons. This can usually be prevented by maintaining a temperature on the MDEA of 5 oC to 10 oC above that of the gas inlet stream.
Other causes of foaming are the degraded amines or the dirt carried over to the absorber by the feed gas. The following precautions help the prevention of foaming:
- Test the amine solution regularly. If its color becomes dark and if the suspended fine solid particles are seen, then the amine filters have to be checked.
- Try to keep the reboiler temperature at around 128 oC and no more than 130 oC to prevent amine degradation.
- Try to minimize the quantity of contaminant arriving with the feed gas.
If a foaming problem exists which cannot be corrected by continuous or intermittent application of the anti-foam inhibitor being used, try other inhibitors, preferably in the lab in advance, to find one that is applicable.
Considerable foaming is sometimes encountered during the initial start-up when the MDEA system has not been thoroughly cleaned as described previously.
If the amine solution becomes heavily contaminated, it might become necessary to shut down the unit and mechanically clean the bottoms of all the equipment. The amine solution can be collected in V-307, and it is returned to circulation after being filtered in X-301 when all the equipments have been cleaned out.
4.7 FILTRATION
MDEA
Observe the pressure differential across the MDEA filter at 4 hour intervals. When this differential reaches 1 to 2 kg/cm2, it is time to clean and pre-coat the filter.
The procedure to be used after the filtering cycle, for cleaning and backwashing will be detailed in the vendor operating manual.
In order to reduce losses, the amine contained in the filter should be drained out into the amine system. The filter cake should be washed out with condensate until the remaining MDEA concentration is down to a 5% level.
The usual run between pre-coats is 3 to 6 days; however, this period will be much shorter on the initial start-up. At times, it could be as short as only a few hours.
5.0 PLANT SHUTDOWN PROCEDURES
5.1 GENERAL
5.2 PLANNED SHUTDOWN (SHORT DURATION)
5.3 PLANNED SHUTDOWN (LONG DURATION)
5.4 EMERGENCY SHUTDOWN
5.4.1 GENERAL
5.4.2 TYPE OF EMERGENCY SHUTDOWN
5.4.3 ACTION DURING EMERGENCY SHUTDOWN
5.0 GENERAL
A planned shutdown is a non-emergency shutdown such as annual turn-around.
As the gas sweetening units are connected with other upstream or downstream units, the process supervisors of these units should be advised before any scheduled shutdown.
During a shutdown, all equipment automatic isolation valves should be closed to minimize the release of hydrocarbons. All precautions to be taken to prevent vacuum formation in vessels/piping during draining operation.
Two types of normal shutdown (short duration and long duration) and purging procedures are presented in this chapter. The major difference between the two types of normal shutdown is that for the long duration shutdown, it is recommended that all the equipments be completely drained and purged.
5.1 PLANNED SHUTDOWN (SHORT DURATION)
a) On a normal shutdown the feed to the unit should be slowly reduced in a stepwise manner to minimize disturbances to the utility system and downstream process units.
For shutdowns of very short nature, i.e. less than a shift, consideration should be given to blocking in the unit and maintaining the amine circulation.
Provide ample top venting during the draining operation, or whenever the vessel is being lowered in a vessel, to avoid pulling a vacuum on the equipment.
1. Slowly reduce the feed and amine flow rates (maximum reduction in steps of 5% design flow). First reduce the feed (FV-1101) followed by the amine (FV-1104, FV-1205). Reduce the amine circulation to 50% design and the feed flow to 30% design.
2. Put the condensate sour gas controller (FV-1102) on manual and slowly close the valve. Isolate the sour condensate gas feed.
3. Change the overhead gas from C-303 to flare via PV-1218 and close off the fuel gas header PV-1216. The MDEA flow via FV-1205 can now be reduced and finally stopped.
4. Ensure there is a steam flow to E-307 then reduce the set point of PV1220 to send treated gas to flare. When PV-1220 is venting gas, close MOV-1201.
5. Put PV-1101 and FV-1101 on manual control and slowly close PV-1101. When the valve is closed then close MOV-1101.
6. Shut off the steam to E-301 A/B and the cooling water to E-306.
7. Reduce the level in V-301 to a minimum (LSLL-1114) then isolate P-306 A/B and the H.C. condensate export. Similarly put LV-1218 on manual and reduce the level in V-302 to a minimum. LSL-1221 will close SDV-1207 automatically to stop the flow of condensate from V302 to V-303.
8. Reduce the amine circulation on FV-1104 to 30% design but continue to circulate for a minimum of 2 hours or until the MDEA solution is completely regenerated. Switch C-302 overhead gas to flare via PV-1326 and close of PV-1327.
9. When the solution is regenerated, the steam flow to the reboiler E-304 should be slowly reduced and the steam flow blocked in. The shutdown of the amine circulation in GSUs will normally be carried out only at a total plant shutdown.
Ensure that the amine regenerator reflux pump P-304 is shutdown before the level in the amine regenerator reflux drum falls sufficiently to shut its level control valve.
10. As the regenerator C-302 cools down it may be necessary to inject fuel gas into the column to prevent a vacuum forming.
11. For a short duration shutdown there should be sufficient pressure hold up in C-301 to continue amine circulation for regeneration. However it may be necessary to add fuel gas to the flash drum V-303 in order to maintain circulation rates.
12. Continue 30% amine circulation until the solution is cool. Then stop the charge pumps P-301 A/B.
13. All the flows on the overhead condenser E-303 and the lean amine cooler E-302 A/B should be shut down at this time.
14.The amine filter package should be stopped to complete the normal shutdown of
the unit.
Note: On a shutdown it is recommended to clean the amine filters. Never leave the filter X-301 standing empty with cake on it, as the filter cake will dry and become very difficult to clean.
5.2 PLANNED SHUTDOWN (LONG DURATION)
It is assumed in this procedure that the outlines as described in the short duration shutdown have been completed.
a) All equipment in the sweetening unit should be drained of amine, which may be stored in the lean amine storage tank T-301 or transferred as necessary to the bulk storage tank in the off-sites.
1. Drain the amine from the absorber C-301 into the amine flash drum V- 303. Monitor the level carefully in the flash drum at this time to ensure that it is not overfilled.
Drain C-301 via LV-1112 until the low level switch LSLL-1109 closes SDV-1104. Thereafter the column must be drained to the sump drum; V-307.
Note:
1. If the amine solution is to be drained from equipment then the amine filter package should not be shut down as mentioned in section 6.2 until all draining is completed.
2. Using fuel gas, pressurize the amine in V-303 to the regenerator C-302 with level controller LV-1215 in manual. After draining as much as possible in this manner close LV-1215, vent V-303 to flare and complete the draining to sump drum V-307.
3. The amine should be drained as far as possible from the amine regenerator back into the Amine Tank T-301. To facilitate this step, it may be necessary to inject fuel gas or inert gas to the regenerator. During this step, carefully monitor the amine level in the lean amine tank T-301. It may prove necessary to pump amine to the off-site bulk storage tank.
4. Drain all vessels, filters, pumps, reboiler, exchangers, coolers and low points in lines to the closed amine drain and then to MDEA sump drum V-307. Inert gas pressurization and purging may be used to facilitate this step as necessary. Block in the liquid lines from all vessels after draining.
5. Transfer amine from the MDEA sump, using amine drain pump P-305 to the lean MDEA tank via the amine filter package.
The amine storage tank T-301 is of sufficient capacity to hold the entire amine system inventory. Depending upon the purpose and nature of the shutdown, amine can also be held in the regenerator and absorber.
6. If it is necessary to completely evacuate the system, T-301 will also have to be drained. A check must be made at this time that the receiving tank can accommodate the necessary volume.
7. Any liquid that cannot be routed to the hydrocarbon blow down, or amine sewer, may then be emptied into the oily water sewer.
8. After depressurization to the flare pressure, using blinds and block valves isolate any line or vessel that is to be entered. Then open the vents to atmosphere and start steaming until the vessels are free of poisonous or combustible mixtures.
Note: The equipment may be purged using the same procedure as section 3.5.2 (purging with steam) or using the following procedure:
Purging
1) After all liquid has been removed from the system and the, system has been depressurized, the unit must be purged with steam to reduce the hydrocarbon content to less than 0.5 vol.%.
2) Connect steam hoses from utility stations to the purge connections on all equipment.
3) Open the steam connections and pressurize the unit to 3.5 kg/cm2a.
4) Depressurize the unit by opening the vents to the flare system and draining any steam condensate to process sewer.
5) Close the vent connections when the pressure in the unit is reduced to approximately 1.1 kg/cm2a.
6) Repeat previous steps three times more for a total of four pressurize/depressurize cycles to achieve a hydrocarbon content of less than 0.5 vol. %.
7) On the fourth depressurizing cycle, leave a pressure of 0.4-0.7 kg/cm2g on the unit using inert gas.
8) Check hydrocarbon content throughout the unit with a portable analyzer. If the hydrocarbon content is above 0.5 vol. %, depressurize to 0.1 kg/cm2g and repeat steps until hydrocarbon content is less than 0.5 vol.%.
Note :Especially check die hydrocarbon content in dead ends of pipes and ensure that the hydrocarbon in liquid lines is blown through. Any hydrocarbon condensate accumulated in the vessels should be drained to the blow down system.
9) When satisfied that all lines and equipment have been inertized, close all connections to flare and leave lines and equipment that will not be opened for maintenance, under a slight positive pressure with inert gas or nitrogen. Steam should not be left in the system because it will condense and may pull a vacuum on the vessels. These vessels should not be vented to atmosphere because of the presence of pyrophoric iron, and it is recommended that inert gas or nitrogen is introduced into the system for safety.
10) The spectacle blinds at the unit battery limits should be swung to their closed position.
11) The gas sweetening unit, except the Flare and Blow down Systems is now completely isolated and is ready for maintenance and inspection.
Note: Maintenance personnel shall not enter into any unit without proper oxygen apparatus unless the unit has been purged entirely with air to displace all inert gas.
5.3 EMERGENCY SHUTDOWN
5.3.1 GENERAL
Each train is equipped with a separate emergency shutdown system. Individual systems can be later integrated with a general system covering all plant emergencies. The shutdown system design depends on the selected control system type, which is a central digital system.
All shutdown valve (SDV) actions are controlled by the central system for each train. Operating procedures are described in the following section of this procedure.
Generally speaking, main equipment such as pumps, compressors, reboilers, coolers etc. can be stopped immediately without any mechanical damage.
The emergency system involves a complete automatic shutdown with complete isolation, and possible depressurization. In case of emergency these shutdowns can be initiated by operators from the control room.
Trains can also be partially stopped for process reasons.
In case of utilities failure, the general rule is to stop and isolate the train while maintaining the gas pressure as long as possible in order to allow a fast restart of the train.
5.3.2 TYPE OF EMERGENCY SHUTDOWN
Emergencies will generally require an immediate complete stoppage of operation with at least part of the" plant shutdown and depressurized. In most instances hydrocarbons must be de-inventoried to the maximum extent possible as determined by the urgency. In some cases, the type of shutdown is complicated by the emergency situation itself.
In many cases, this requires a split-second decision by the operator.
Conduct all emergency shutdowns in the most economical manner possible with primary considerations for the safety of personnel, and secondary concern to safeguarding the equipment. Less priority should be given for product quality.
Determine the cause of the emergency, including the exact situation. If possible revert to a normal shutdown at the first opportunity.
A unit shutdown system is provided which can shut down all incoming gas, treated and acid gas.
Emergency shutdowns may be caused by:
- Automatic shutdown resulting for example from a product or utility failure.
- Manual shutdown entailed by an emergency or to avoid an accident.
1. Automatic shutdown:
May be caused by a low flow of amine to the absorber.
2. Manual shutdown
Depending on the kind of trouble, the operators should be able to react at different levels. Shutdown may be total by stopping only the lean amine pump. This starts an automatic sequence, which isolates the unit.
Partial shutdown can be achieved by blocking the feed and exit gas; the amine flow will still be in circulation.
3. Short duration stops
This may be caused by utility failure. In this case, the shutdown may be automatic or manual.
Instrument air failure : The unit will automatically be stopped.
Steam failure : The regenerator reboiler stops, so the unit
should be manually stopped from the
control room.
Power failure : All pumps will be stopped and the unit will
be automatically stopped.
Cooling water failure : Regenerator top temp & Lean Amine temp
will be raised. So the unit should be taken
to short duration shutdown procedures.
5.3.3 ACTION DURING EMERGENCY SHUTDOWN
As mentioned in the previous section "Type of Emergency Shutdown", there are a number of failure modes that will cause the Gas Sweetening Unit to go into a full or partial shutdown.
The following procedures deal with the various shutdowns mentioned above.
Each full or partial shutdown has a number designated to it, an example being which is a low level in the bottom of the absorber, C-301.
Utility failure has no number designated.
5.3.3.1 Low Level in Absorber C-301 (Interlock Signal No.1)
The following automatic action will take place upon LSLL-1109 being activated:
- Absorber bottoms shut-off valve SDV-1104 will close
Feed gas shut-off valves SDV-1101and SDV-1102 will close
Treated gas shut-off valves SDV-1205, SDV-1206 will close
Amine feed pumps P-301 A or B will stop
The following manual action should be taken by the control console operator:
- Put FIC-1309 into manual position and close FV-1309 - Trip SOV-1377 to ensure the FV-1309 is closed. Steam is now isolated from the reboiler E-304
- Put FRC-1102 into manual position and close FV-1102
- Put PRC-1101 into manual position and close PV-1101
- Trip SOV-1216 to close the PV-1216
Depending upon the amount of time taken to get the plant back on stream, the following actions may be taken.
- Low-level LAL-1221 in V-302 will cause S0V-1207 to close to protect the V-302 from running dry, depressurizing gas into the V-303.
Note: Operators must bear in mind that field manual reset type solenoid operated valves (SOV) require that an operator go into the unit and manually reset the valves that have been tripped. Except for FMR almost all solenoid operated valves are CMR type.
5.3.3.2 Low Level in Feed Gas KG. Drum V-301 (Interlock Signal No.2)
The following automatic action will take place upon LSLL-1114 being activated:
- Hydrocarbon condensate pump P-306 A or B will stop.
- Hydrocarbon condensate shut-off valve SDV-1103 will close.
The following manual action will be taken when the level reaches normal in V-301.
- Manually reset SDV-l103.
5.3.3.3 Low Level in Feed Gas KG. Drum V-301 (Interlock Signal No.3)
The following automatic action will take place upon LSL-1106 being activated:
- Hydrocarbon condensate pump P-306 A or B will stop.
5.3.3.4 High Level in Inlet Gas KG. Drum V-301 (Interlock Signal No.4)
The following automatic action will take place upon LSH-1107 being activated:
- Hydrocarbon condensate pump P-306 A or B will start.
5.3.3.5 High Level in Rich Amine Flash Drum V-303 (Interlock signal No.5)
The following automatic action will take place upon LSHH-1224 being activated:
- Absorber bottoms valve SDV-1104 will close.
- Treated gas KO Drum V-302 condensate shut-off valve SDV-1207 will close.
The following manual action must be taken when the level in V-303 is back to normal.
- Manually reset SDV-1104
- Manually reset SDV-1207
5.3.3.6 Low Level in Treated Gas K.O. Drum V-302 (Interlock Signal No.6)
The following automatic action will take place upon LSL-1221 being activated:
- Treated gas KO Drum V-302 condensate shut-off valve SDV-1207 will close.
The following manual action must be taken when the level in V -302 is back to normal
- Manually reset SDV-1207
5.3.3.7Low Amine Flow Rate to Absorber C-301 (Interlock Signal No.7)
The following automatic action will take place upon FSL-1104 being activated:
- Amine feed pumps P-301 A or B will stop.
- Treated gas shut-off valves SDV-1205 and SDV-1206 will close.
The following manual action should be taken by the operator:
- Trip SDV-1104 shut-off valve.
- Trip SDV-1216 to close PV-1216
For a restart of the Gas Sweetening Unit after the, above action has been taken, the following action is to be taken:
- Restart the amine feed pumps P-301 A or B.,
- Manually reset shut-off, valve SDV-1104. Re-establish correct amine circulation rates.
- Manually reset the treated gas shut-off valve SDV-1205 and SDV- 1206.
- Manually reset the fuel gas shut-off valve SDV-1216
5.3.3.8 Low Discharge Pressure at the Amine Feed Pumps P-301 A/B
(Interlock Signal No.8).
The following automatic action will take place upon PSL-1561 being activated:
- Amine feed pumps P-301 A or B will stop.
- Treated gas shut-off valves SDV-1205 and SDV-1206 will close.
The following manual action must be taken by the operator:
- Trip SDV-1104 shut-off valve.
- Trip SOV-1216 to close PV-1216
For a restart of the Gas Sweetening Unit after the above action has been taken, the following must be done:
- Restart the amine feed pumps P-301 A or B.
- Manually reset shut-off valve SDV-1104.
Re-establish correct amine circulation rates.
- Manually reset the treated gas shut-off valves SDV-1205 and SDV-1206.
- Manually reset the fuel gas shut-off valve PV-1216.
5.3.3.9 Low Level in Bottom of Regenerator C-302 (Interlock Signal No.9)
The following automatic action will take place upon LSL-1329 being activated:
- Regenerator bottoms shut-off valve SDV-1309 will close.
The following manual action must be taken when the level in C-302 reaches normal operating level:
- Manually reset SDV-1309 shut-off valve.
5.3.3.10 Low Level in Reflux Drum V-304 (Interlock Signal No. 10)
The following automatic action will taken place upon LSL-1334 being activated.
- Reflux pump P-304 A or B will stop.
The following manual action must be taken when the level in V-304 has returned to normal.
Restart reflux pump P-304 A or B.
5.3.3.11 General Shutdown of the Unit (Interlock Signal No. 11)
The following automatic action will take place upon activation of the Emergency Shutdown Push Button: 11
- Feed gas shut-off valves SDV-1101 and SDV-1102 will close,
- Treated gas shut-off valves SDV-1205 and SDV-1206 will close.
- Treated fuel gas valve PV-1216 (SQV-1216) will close.
- H.C. condensate valve SDV-1103 will close.
- Acid gas valve PV-1327 will close.
- Absorber C-301 bottoms valve SDV-1104 will close.
- Lean amine valve SDV-1309 from the regenerator C-302 bottoms will close.
- LP steam valve FV-1309 to reboiler E-304 will close.
- Hydrocarbon condensate pump P-306 A or B will stop.
Amine feed pump P-301 A or B will stop.
The following manual action should be taken by the control panel operator:
- Shut-off all electric motor drives.
If the unit requires depressurizing, slowly open the following valve to flare.
PV-1220
PV-1218
PV-1326
Restart of the unit will depend on the reason that the Emergency Push Button was activated. Depending upon the duration of the shutdown, refer to Section “Plant Start-Up”.
GSU: Gas Sweetening Unit (Train, 31 to 38)
1. Process objectives:
1.1. To reduce the H2S content of sour gas (received from offshore & CFU off-gas) to 4 ppmv (max) (Acceptable level of H2S for pipeline transportation by M/s. GAlL) &
at the same time, to limit the CO2 Co-absorption to the minimum required and in any case, to not more than 32%.
2. Principle of operation:
2.1 Counter current absorption using aqueous solution of MDEA. (Methyl-di- ethanol-amine).
2.2 Regeneration of rich MDEA solution to lean MDEA solution in two stages.
2.2.1. Stage-I: Flashing at intermediate pressure in MP flash drum. To generate fuel gas. (Release of physically absorbed hydrocarbons)
2.2.2 Stage-II: Re-boiling of Rich MDEA in regenerator to generate Acid gas, which is sent to SRU. (Release of Acid components).
3. Parameters & Operating variables:
Operating parameters and variables affecting the absorption & regeneration process are listed below:
Parameters / Variables | Range of Operation | Comments |
|
Absorption Section - Gas flow rate. | 223 KNm3/hr Ph-IIIA: 262.5 KNm3/hr Both at 76.4 Kg/cm2a (max.) Absorption system pressure. Turn down ratio: 40%. | Less flow may lead to: - Under utilization of train capacity. - More CO2 absorption. More flow may lead to: - Tendency of foaming. - More pressure-drop across the unit. - Inadequate H2S absorption. |
|
- Gas Pressure. - Feed Gas Temperature | 77 kg/cm2a Max system pr 54 kg/cm2 Min system pr. 25o to 35oC at absorber inlet. | High absorption system press may lead to : - Max design pressure is 77 kg/cm2. - Higher Hydrocarbon absorption in the amine and subsequent high fuel gas generation. Low absorption system Press may lead to : - Inadequate H2S absorption. - Reduction in overall control response time, as the control valves tend to get fully open. |
|
Low temperature may lead to: - Hydrates formation during pressure reduction (hi pr operation). High temperature may lead to : - Inadequate H2S absorption. - Fouling of E-306 & affect GDU performance. | |||
| |||
- Feed gas quality. | Should be free from dirt debris, corrosion product and oils etc. | Presence of dirt may lead to: - Foaming and subsequent loss in processing capacity, antifoam loss, inadequate absorption and other related problems. |
|
- Lean Amine Flow | 215 m3/hr to C-301 005 m3/hr to C-303 Ph-IIIA trains: 226.3 m3/hr to C-301 019.4 m3/hr to C-303 | More flow may lead to: - Energy loss - MDEA loss due to carryover. - More CO2 absorption. - Disturb column hydraulics and lead to foaming. Less flow may lead to: - Inadequate H2S absorption. |
|
- Lean Amine Temperature | Amine injection temperature should be just above feed gas temperature (by +5oC). Max. temperature of Amine solution is 43oC. | Low temperature may lead to: - Condensation of HC from gas and subsequent foaming. High temperature may lead to: - Inadequate H2S absorption. - Fouling of E-306 & affect GDU performance. |
|
- Amine Injection ROV | Any of the five ROVs, depending upon the outlet H2S ppmv. | Higher ROV may lead to: - Better H2S co-absorption but higher CO2 absorption also. - More pumping energy requirement. - MDEA loss due to carryover. - Disturb column hydraulics and subsequent vibrations. - Increase amine temperature. |
|
- Variation of Column pressure drop. | No variations | High variations may lead to: - Foaming. Low or no variation: - Indicate column stability and low foaming tendency. |
|
Lean Amine Quality - Concentration. | 480 gm/l MDEA | Lower concentration may lead to: - Inadequate H2S absorption. - More pumping energy loss. - More fuel gas generation. Higher Concentration may lead to: - Reduce the quantity of heat exchanged in PHE, which increases re-boiler duty. |
|
- Concentration of CO2/ H2S in Lean Amine solution. | 0.29 gm/1 H2S (max.) 0.25 gm/1 CO2(max.) | More concentration may lead to: - Inadequate H2S co-absorption. |
|
- Purity of Amine Solution. | Clean | High dirt content may lead to: - Foaming. - Frequent filter cleaning and pre- coating. |
|
REGENERATION of Rich Amine. A > MP flash: - Pressure of MP flash | 9.85 kg/cm2A | High flash pressure may lead to: - High hydrocarbon content in Acid gas to SRU. - Inadequate recovery of acid gas absorbed hydrocarbon. Low pressure may lead to: - Higher fuel gas generation. - Inadequate H2S absorption from fuel gas. |
|
B> Acid gas release - Pressure | 2.2 kg/cm2a | High pressure may lead to: - Inadequate acid components stripping. Low pressure may lead to: - Difficulty in maintaining regenerator level. |
|
- Regeneration temperature | 130oC | High temperature may lead to: - Degradation of amine and subsequent dirt in system. - Higher cooling duties of exchangers. - Fouling of exchangers. Low temperature may lead to: - Inadequate regeneration of amine- high acid components in regenerated amine solution. |
|
Amine filtration system: - Pressure drop across filter | 1-2 kg/cm2 (max) | High DP indicates: - Filters require cleaning and pre- coating. |
|
1. Automatic pressurization of Regenerator of GSU train 31 with fuel gas:
The system was installed in Feb’2000. Schematic diagram is placed at sl no 1.
2. Modification in fuel gas header of MP flash drums in GSU- I train:
Fuel gas lines from MP flash drums of trains 31, 32 and 33 have augmented by laying additional 2” header. This is for avoidance of back pressure on MP flash drums and to subsequent flaring. Schematic diagram is placed at sl no 2.
3. Modification for minimum flow for MDEA injection pumps in GSU I and II :
A minimum flow provision to the MDEA injection pumps of GSP Ph-I and II has been made through 4” of control valve. The schematic diagram is placed at sl no 3.
4. Sweet gas pressurizing to GSU trains of Phase-I and II.
One 4” sweet gas line from DPD outlet (at tap-off point for fuel gas to co-gen) has been laid down joining GSU inlet of Ph-I and II. This is for pressurizing and leak test of the trains. Schematic diagram is placed at sl no 4.
5. Paralleling of Amine Coolers E-302A/B of GSU Phase-I and II trains:-
Modification carried out in Sept 2001. Cooling water line to Amine coolers (E 302A/B) has been modified for operation in parallel as well. This enhances the heat duty. Schematic diagram is placed at sl no 5..
6. Rerouting in fuel gas system of GSU/GDU of Phase-I and II trains through suction KOD of vapour compressor:
Commissioned in June’2001. Fuel gas generated in GSU trains was routed through KODs installed in GSU trains of Phase- I and II, which were of very small capacity (0.65m3). The fuel gas generated in GDU trains was directly joining the fuel gas header from the degasser itself. Because of smaller capacity of KODs/direct routing of fuel gas from GDU trains, heavy carryover of liquid was observed whenever there was any operational upsets in either GSU or GDU trains. The total fuel gas header used to get filled up with liquid and affecting downstream consumers of fuel gas like KRU, boilers and incinerator. Due to carry over problem these units sometimes had to be shutdown.
In order to avoid recurrence of the above problem, it was thought of installing higher capacity KODs in the fuel gas streams of Ph-I and II. The vapour compressor system installed along with GSU trains of Phase-I and II trains are not in operation since last 10 years. Each train is having two numbers of KODs installed at the 1st and 2nd stage suction of vapour compressor. They are designed for 7.5 kg/cm2 and 1430C, which are suitable for fuel gas system. Also there are 26.5 m3 capacity, which is much higher than existing KOD.
Suitable modifications in fuel gas system have been done by rerouting the fuel gas from Ph-I GSU trains through V-306 of train 33. Similarly the fuel gas from GDU trains of Ph-I is routed through V-305 of train-33. The out let of these two vessels are combined before it joins the common fuel gas header. In addition the liquid out let of V-305 is connected to pure TEG header to recover TEG. Provision exists in V306 for recovery of MDEA. The vessels contain PT, LT, and LG, level switches for high and low to monitor the operating parameters. The vessels are having two numbers each of safety valves set at 7 kg/cm2.
On the same lines, the fuel gas system of Phase-II also modified through the vessels V-305 and V-306 of train 34.
The modified drawings is enclosed at sl no 6 and 7..
7. Modification in Fuel Gas Header:
The fuel gas generated from MP flash drums of GSP units are connected to main 10” FG header. The supply header from GSP Ph-II, III and IIIA are of 2” size. Since the 2” header could not handle the total fuel gas, redundant 4” boiler feed water header is used as an additional header from GSP Ph-II, III and III-A to the main FG header behind LPG recovery unit. The necessary modifications were done and the header was commissioned in May 2002. The relevant drawing is enclosed at sl no 8.
8. Modification of 31-LV-1112:
31-LV-112 has been modified to take care of high-pressure drop by replacing it with 71-LV-1106 in June 2000.
9. Primary reduction valves (PV1101) at GSU inlet of trains 31, 32 and 33 which were of smaller size (6”) has been replaced with 12” size. This helped in reducing pressure drop. Earlier 6” size was suitable for high-pressure case where pressure drop envisaged was 18 kg/cm2. High-pressure conditions were never operated so far.
10. PV 1220 and PV 1228 of train no 37 & 38 of PH-IIIA is to close in case of instrument air fail, but open in case of instrument power fail.
11. PV 1220 and PV 1228 of all other trains of GSU in PH-I & II are to open in case of instrument Air and power fail.